Renovated with new flooring and fresh paint this unit is being offered furnished with a funky design and is located in the popular Kirra Surf Apartments on the beachfront.
FEATURES
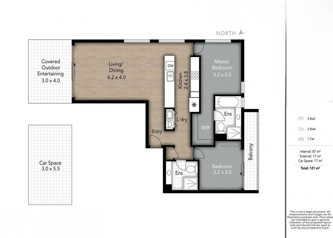
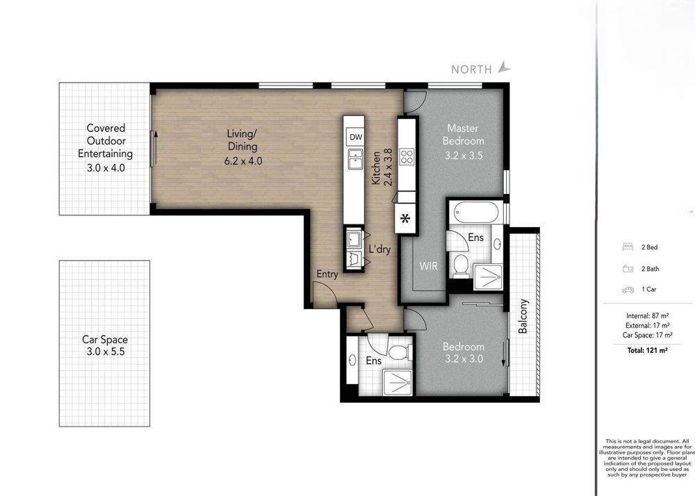
- main bedroom with walk in robe and queen bed and wall mounted TV
- ensuite off main
- second bedroom including Tri bunk bed (double below - single above)
- fully equipped kitchen with microwave, toaster kettle and crockery, cutlery, pots and pans
- open plan living and dining opening onto beachside balcony all with ocean views
- separate laundry with washer and dryer
- main bathroom
- ocean view balcony with mural art wall that infuses coastal charm into the outdoor experience
- basement secure car park
ADDITIONAL FEATURES
- ocean and hinterland views
- ducted air conditioning
- resort facilities including sauna, spa, lap pool and BBQ facilities
Relax and rejuvenate in the resort sauna after soaking up the sun and surf. Stay active in our gymnasium equipped with rowing machine, strength training machine, treadmills and exercise bike. All this from a private end apartment with perfect northeast facing balcony offering spectacular ocean and hinterland views.